Lot 1 - Friars Courtyard, 30-32 Princes Street, Ipswich, Suffolk, IP1 1RJ

  • Unconditional Online Auction Sale
  • Guide Price* : 355,000
  • Bedrooms: 0
  • Bathrooms: 0
  • Reception Rooms: 0

For Sale By Online Auction A freehold investment opportunity, that is fully let and producing an income of £33,200 pa, with potential for future residential conversion (STP) in the centre of Ipswich.

Description

An opportunity to acquire the freehold of Friars Courtyard comprising fully let office investment and ground rent income generating £33,200 per annum exclusive.
Potential for future residential conversion (STP & possession)
Capital value below £100 per sq ft.
WAULT 2.5 years

For Sale By Timed Online Auction - 12 noon, Thursday 28th September

Method of Sale
The property is being offered for sale by Unconditional Timed Online Auction at 12 noon on 28th September 2023 and on the assumption the property reaches the reserve price, exchange of contracts will take place upon the fall of the electronic gavel with completion occurring 10 working days thereafter. For details of how to bid please read our Online Auction Buying Guide. 

The seller’s solicitor has prepared an Auction Legal Pack.  This will be available to view online and interested parties should Register online to receive updates.  If you are viewing a hard set of these particulars or via Rightmove or alike, please visit the Online Property Auctions section of Clarke and Simpson’s website to Watch, Register and Bid. 

Seller’s Solicitors
The seller’s solicitor is Ari Bloom at Solomon Taylor & Shaw LLP. 3 Coach House Yard, Hampstead High Street, London, NW3 1QF  For the attention of: Ari Bloom email: ari@solts.co.uk Tel: 0207 3178683.  We recommend that interested parties instruct their solicitor to make any additional enquiries prior to the auction. 

Location
The property occupies a prominent location in the heart of Ipswich town centre, opposite the well known Willis building, designed by Norman Foster and Listed Grade I. Other occupiers located nearby include Savills and Attwells Solicitors.

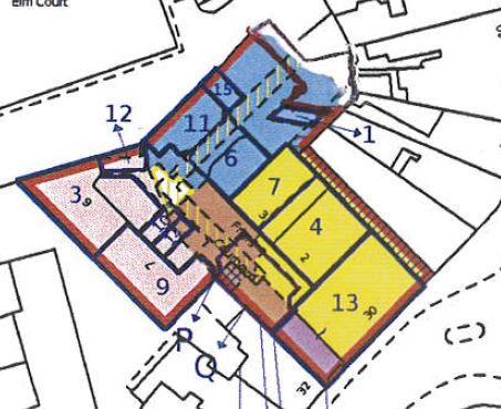
Description
30-32 Princes Street is an impressive office building which was purpose built around 1986 and is known as Friars Courtyard. Unit 1, which fronts Princes Street, is arranged over ground and three upper floors together with basement storage. The ground floor has an extensive window frontage to Princes Street and also planning permission for Class A2 use and a new doorway access if required. There is private and secure car parking within the rear of Friars Courtyard providing 3 spaces used by occupiers of Unit 1. The remaining spaces are demised to owners and occupiers of the various buildings to the rear.

Accommodation

UNIT 1
Basement Storage 75.2 sqm 809 sq ft
Ground Floor Offices 89.4 sqm 962 sq ft Rateable value £14,750
First Floor Offices 124.5 sqm 1,340 sq ft Rateable Value £8,800
Second Floor Offices 125.6 sqm 1,351 sq ft Rateable Value £6,700
Third Floor Offices 21.7 sqm 233 sq ft Rateable Value £1,150
TOTAL 436.4 sqm 4,695 sq ft Rent Per annum £33,200

Tenure
The entire property is offered for sale freehold as a Transfer of Going Concern at a Guide Price of £355,000. No VAT is payable.

Tenancies
The overall property is fully let on full repairing and insuring ground leases with a service charge provision. Unit 1 is multi-let to several good quality commercial tenants which include MidShires Care Ltd (Trading as Helping Hands) and SM Global Consultancy. Units 2-8 inclusive have all been sold on 199 year long leases and there are full service charge provisions and ground rents payable.

The property at present produces £33,200 per annum exclusive with a WAULT (weighted average unexpired lease term) of 2.5 years. Further information, tenancy schedule and copy leases are available upon request.

Services
The properties are connected to all mains services. A gas fired boiler in the basement of Unit 1 provides central heating and hot water to all floors.

Planning
The property has full planning permission for Class B1 Office Use (Now Use Class E) and the ground floor of Unit 1 also benefited from use within Class A2 (Financial and Professional Services.)
Units 2 and 3 (to the rear) have recently been converted to residential as 6 x 2 bedroom flats
(Planning Ref: IP21/00733/P3JPA). Unit 8 has also been converted to residential use.

Business Rates
Unit 1 is currently assessed as Offices and Premises with Rateable Values as per the table on page 2. All other units and car spaces in Friars Courtyard are separately assessed, and the responsibility of the long lessees.

Local Authority
Ipswich Borough Council; Grafton House, 15-17 Russell Road, Ipswich IP1 2DE; Tel: 01473 432000

Legal Costs
Each party to be responsible for their own legal costs incurred in any transaction.

Viewing
Strictly by prior appointment with the agent.

EPC
Rating = C (64). A full copy of the EPC is available on request.

NOTES
1.  Every care has been taken with the preparation of these particulars, but complete accuracy cannot be guaranteed.  If there is any point, which  is of particular importance to you, please obtain professional confirmation. Alternatively, we will be pleased to check the information for you.  These Particulars do not constitute a contract or part of a contract.  All measurements quoted are approximate.  The Fixtures, Fittings & Appliances have not been tested and therefore no guarantee can be given that they are in working order.  Photographs are reproduced for general information and it cannot be inferred that any item shown is included.  No guarantee can be given that any planning permission or listed building consent or building regulations have been applied for or approved. The agents have not been made aware of any covenants or restrictions that may impact the property, unless stated otherwise.  Any site plans used in the particulars are indicative only and buyers should rely on the Land Registry/transfer plan.

2. The Money Laundering, Terrorist Financing and Transfer of Funds (Information on the Payer) Regulations 2017 require all Estate Agents to obtain sellers’ and buyers’ identity.

3.  In the unlikely situation of our client considering an offer prior to auction, a premium price would have to be put forward and the purchaser would be required to sign the contract and put down a 10% deposit and pay the Buyers Administration Charge, well in advance of the auction date.  An offer will not be considered unless a potential buyer has read the legal pack and is in a position to immediately sign the contract.  The seller is under no obligation to accept such an offer.   It should be noted that Clarke and Simpson cannot keep all interested parties updated and at times will be instructed to accept an offer and exchange contracts without going back to any other parties first. 

4. Additional fees:  Buyers Administration Charge - £900 including VAT (see Buying Guide).  Disbursements - please see the Legal Pack for any disbursements listed that may become payable by the purchaser upon completion.

5.  The guide price is an indication of the sellers minimum expectations.  This is not necessarily the figure that the property will sell for and may change at any time prior to the auction.  The property will be offered subject to a reserve (a figure below which the auctioneer cannot sell the property during the auction) which we will expect to be set within the guide range of no more than 10% above a single figure guide. 
August 2023














* Generally speaking Guide Prices are provided as an indication of each seller's minimum expectation, i.e. 'The Reserve'. They are not necessarily figures which a property will sell for and may change at any time prior to the auction. Virtually every property will be offered subject to a Reserve (a figure below which the Auctioneer cannot sell the property during the auction) which we expect will be set within the Guide Range or no more than 10% above a single figure Guide.

Loading the bidding panel...

Agreement Documents

Additional Documents

Related Documents

Make an Enquiry

Submit an enquiry and someone will be in contact shortly.

 
*  
*  
*
*
*

Share