Method of Sale
The property is being offered for sale by Unconditional Timed Online Auction on 30th November 2023 and on the assumption the property reaches the reserve price, exchange of contracts will take place upon the fall of the electronic gavel with completion occurring 10 working days thereafter. For details of how to bid please read our Online Auction Buying Guide.
The Seller’s solicitor has prepared an Auction Legal Pack. This will be available to view online and interested parties should Register online to receive updates. If you are viewing a hard set of these particulars or via Rightmove or alike, please visit the Online Property Auctions section of Clarke and Simpson’s website to Watch, Register and Bid.
Seller’s Solicitors
The seller’s solicitor is Fairweather Law, 10 Riverside, Framlingham, Suffolk IP13 9AG. For the attention of: Jasmine Pringle; Tel: 01728 724737; Email: jpringle@fairweatherlaw.co.uk. We recommend that interested parties instruct their solicitor to make any additional enquiries prior to the auction.
Location
The plot is located in the heart of the ever popular village of Easton, opposite the primary school. The village benefits from a highly regarded dining pub, The White Horse. As well as the primary school there is a village hall , an attractive church and also Easton Farm Park, a bowls club and well supported cricket club.
The village of Wickham Market is approximately 2 miles from the property. Here there are comprehensive facilities including a Co-op supermarket, butchers, medical centre, vets, dentist, post office and primary school . Framlingham is just 4 miles from the property and offers further facilities. The popular market town of Woodbridge is 8 miles, and this offers national and independent shopping facilities, a variety of eateries and is popular for sailing on the River Deben. The Suffolk Heritage Coast, with popular destinations such as Aldeburgh, Southwold, Orford and Thorpeness is within the locality. The County Town of Ipswich is 14 miles to the south-west and from here there are direct trains to London’s Liverpool Street station scheduled to take just over the hour.
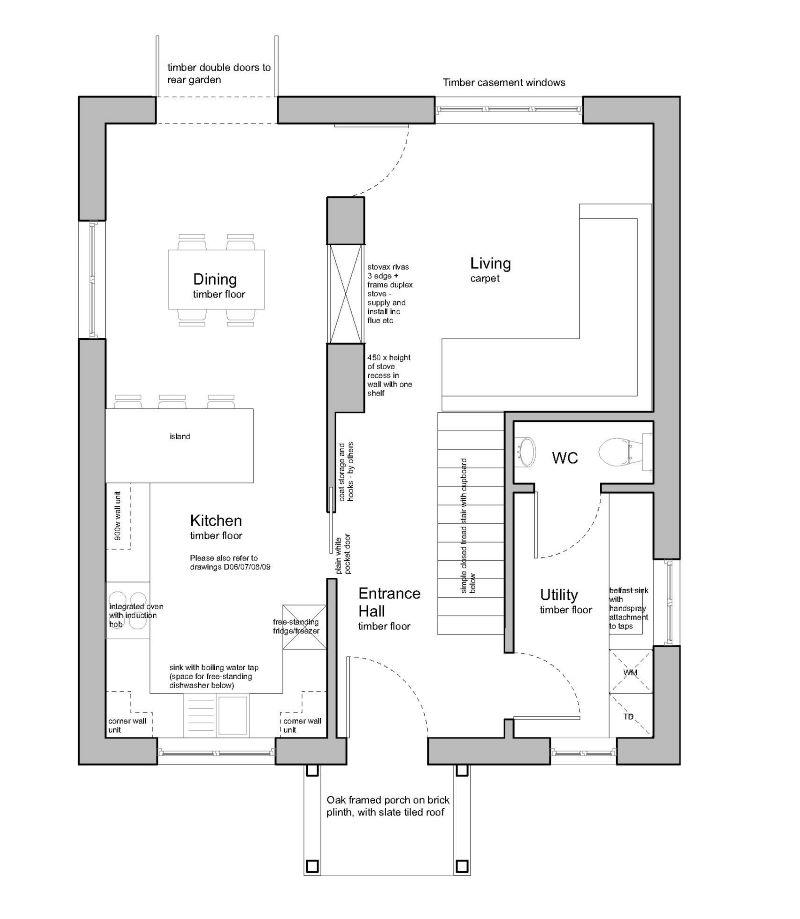
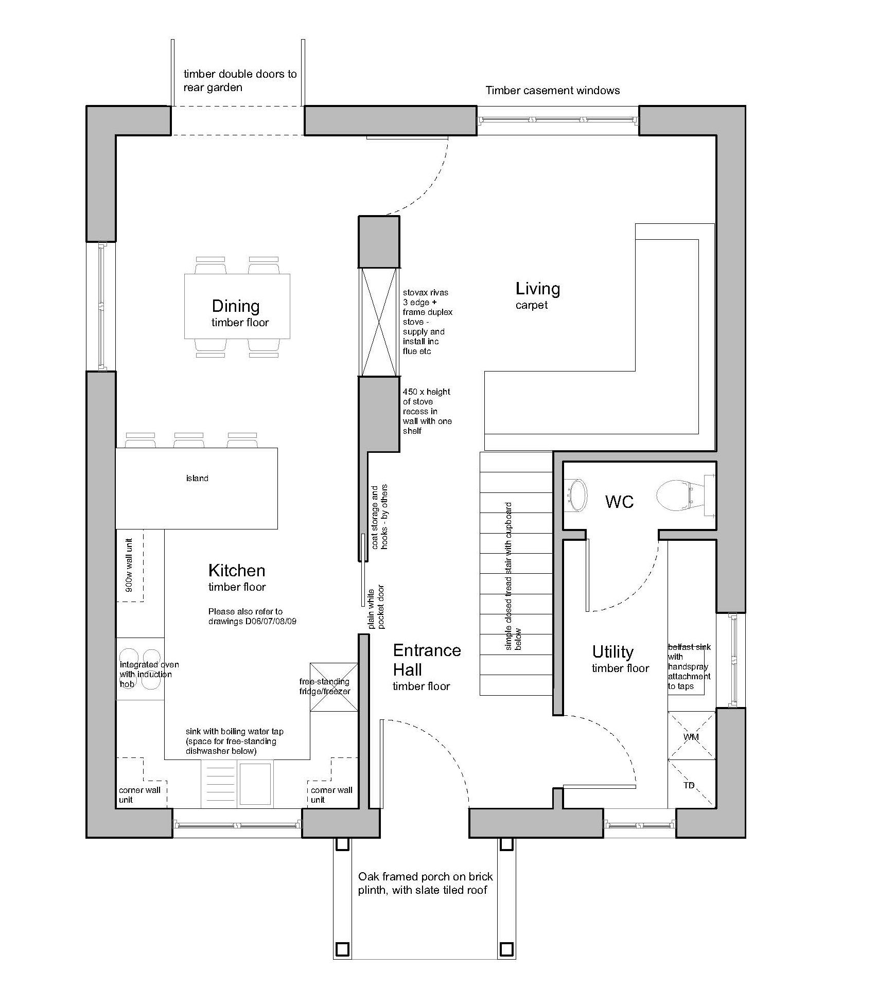
Description
Planning permission was granted by East Suffolk Council on 17th November 2022 under Reference DC/22/1978/FUL for the construction of a new dwelling. A copy of the planning permission, together with extracts of the consented plans is included within these particulars. Further documentation can be found on East Suffolk Council’s website.
Community Infrastructure Levy (CIL)
CIL is payable and this was set on 17th August 2023 at £24,209.72. It is understood that this is index linked. It is believed, if the plot is purchased by a self-builder/owner-occupier, then it may be possible for a CIL exemption. Enquiries relating to CIL should be referred to the local planning authority, East Suffolk Council. cil@eastsuffolk.co.uk. Tel: 01502 523052.
Services
A sale plan is included within these particulars and it should be noted that the vendors are selling additional land to the consented area. It is understood that mains electricity is in the immediate vicinity, water runs along the road and the mains drain runs through the plot itself. There is no gas in the village.
Interested parties should undertake their own investigations in relation to availability and capacity of services.
Viewing
By prior arrangement with the agent and thereafter with particulars in hand.
Local Authority
East Suffolk Council; East Suffolk House, Station Road, Melton, Woodbridge, Suffolk IP12 1RT;
Tel: 0333 016 2000
NOTES
1. Every care has been taken with the preparation of these particulars, but complete accuracy cannot be guaranteed. If there is any point, which is of particular importance to you, please obtain professional confirmation. Alternatively, we will be pleased to check the information for you. These Particulars do not constitute a contract or part of a contract. All measurements quoted are approximate. The Fixtures, Fittings & Appliances have not been tested and therefore no guarantee can be given that they are in working order. Photographs are reproduced for general information and it cannot be inferred that any item shown is included. No guarantee can be given that any planning permission or listed building consent or building regulations have been applied for or approved. The agents have not been made aware of any covenants or restrictions that may impact the property, unless stated otherwise. Any site plans used in the particulars are indicative only and buyers should rely on the Land Registry/transfer plan.
2. The Money Laundering, Terrorist Financing and Transfer of Funds (Information on the Payer) Regulations 2017 require all Estate Agents to obtain sellers’ and buyers’ identity.
3. In the unlikely situation of our client considering an offer prior to auction, a premium price would have to be put forward and the purchaser would be required to sign the contract and put down a 10% deposit and pay the Buyers Administration Charge, well in advance of the auction date. An offer will not be considered unless a potential buyer has read the legal pack and is in a position to immediately sign the contract. The seller is under no obligation to accept such an offer. It should be noted that Clarke and Simpson cannot keep all interested parties updated and at times will be instructed to accept an offer and exchange contracts without going back to any other parties first.
4. Additional fees: Buyers Administration Charge - £900 including VAT (see Buying Guide). Disbursements - please see the Legal Pack for any disbursements listed that may become payable by the purchaser upon completion.
5. The guide price is an indication of the sellers minimum expectations. This is not necessarily the figure that the property will sell for and may change at any time prior to the auction. The property will be offered subject to a reserve (a figure below which the auctioneer cannot sell the property during the auction) which we will expect to be set within the guide range of no more than 10% above a single figure guide.
6. The seller has informed the agent that the plot did not flood during the October 2023 storm. November 2023
* Generally speaking Guide Prices are provided as an indication of each seller's minimum expectation, i.e. 'The Reserve'. They are not necessarily figures which a property will sell for and may change at any time prior to the auction. Virtually every property will be offered subject to a Reserve (a figure below which the Auctioneer cannot sell the property during the auction) which we expect will be set within the Guide Range or no more than 10% above a single figure Guide.
Submit an enquiry and someone will be in contact shortly.
By setting a proxy bid, the system will automatically bid on your behalf to maintain your position as the highest bidder, up to your proxy bid amount. If you are outbid, you will be notified via email so you can opt to increase your bid if you so choose.
If two of more users place identical bids, the bid that was placed first takes precedence, and this includes proxy bids.
Another bidder placed an automatic proxy bid greater or equal to the bid you have just placed. You will need to bid again to stand a chance of winning.