Lot 1 - Building Plot, The Street, Cretingham, Woodbridge, Suffolk, IP13 7BJ

  • Unconditional Online Auction Sale
  • Guide Price* : £150,000
  • Bedrooms: 0
  • Bathrooms: 0
  • Reception Rooms: 0

For Sale By Online Auction A rare opportunity to acquire a building plot with full planning permission for a spacious two bedroom bungalow in the popular and desirable village of Cretingham.

Description

For Sale By Timed Online Auction - 24th July 2024

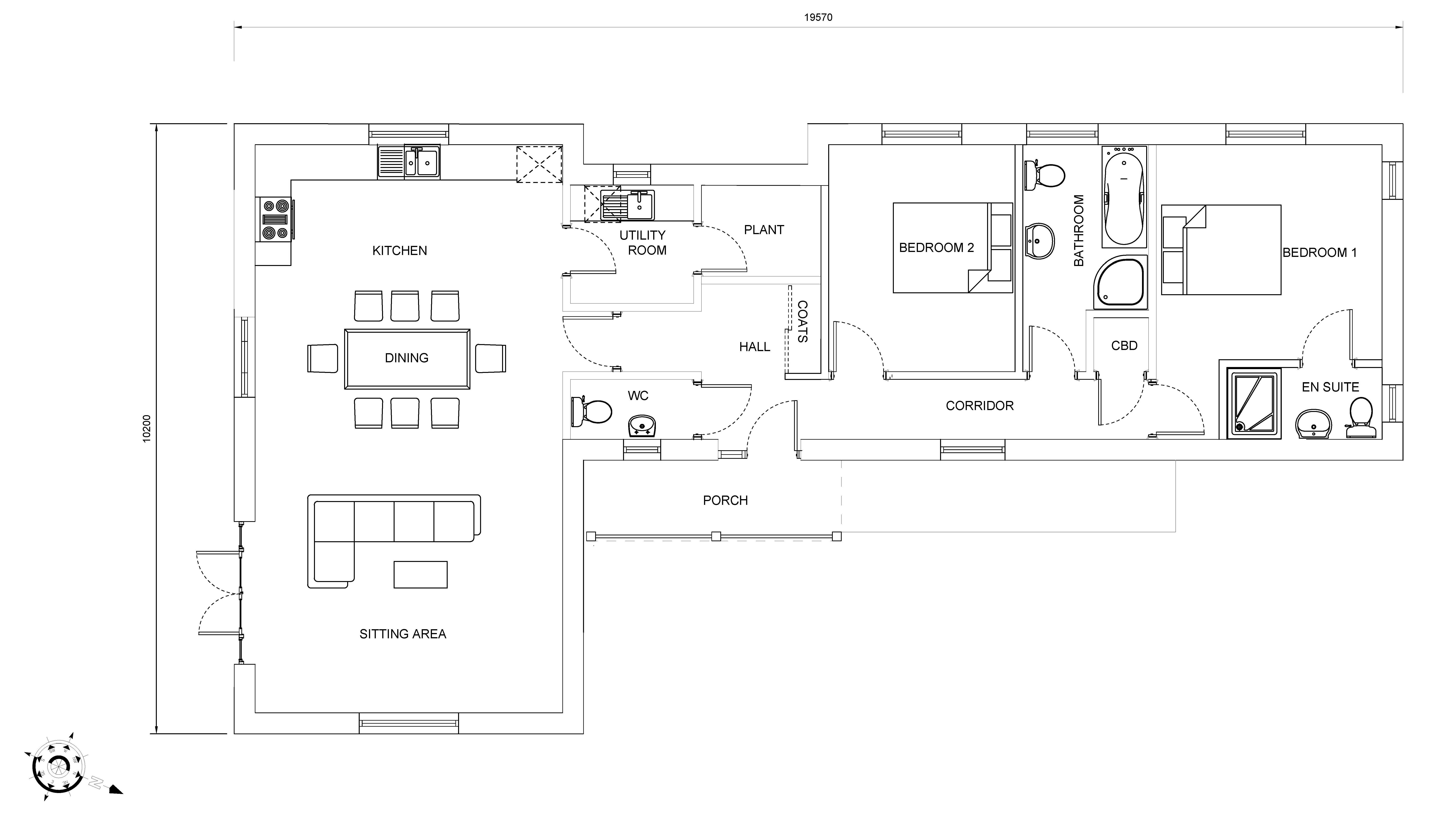
A building plot extending to approximately 0.26 acres (0.1 ha) with planning permission for the erection of a single storey two bedroom dwelling of just over 1,200 sq ft (113 sqm) offering entrance hall, open plan kitchen, dining and sitting room, utility room and cloakroom.  Principal bedroom with en-suite shower room, additional double bedroom and bathroom. Driveway and west facing rear garden. 

Method of Sale
The plot is being offered for sale by Unconditional Timed Online Auction on 24th July 2024 and on the assumption the plot reaches the reserve price, exchange of contracts will take place upon the fall of the electronic gavel with completion occurring 10 working days thereafter. For details of how to bid please read our Online Auction Buying Guide.  The Seller’s solicitor has prepared an Auction Legal Pack.  This will be available to view online and interested parties should Register online to receive updates.  If you are viewing a hard set of these particulars or via Rightmove or alike, please visit the Online Property Auctions section of Clarke and Simpson’s website to Watch, Register and Bid. 

Seller’s Solicitors
The seller’s solicitor is Birketts LLP; Providence House, 141-145 Princes Street, Ipswich IP1 1QJ;  For the attention of: Imogen Grainger; Tel: 01473 406307; Email: imogen-grainger@birketts.co.uk.  We recommend that interested parties instruct their solicitor to make any additional enquiries prior to the auction. 

Location
The building plot is set along The Street, a short distance to the south of the centre of the popular and desirable village of Cretingham.  The village itself benefits from a church and a highly respected pub, The Bell.  The village of Brandeston is 1.5 miles and is home to Framlingham College’s Prep-school. Framlingham itself is just 5.5 miles from the property and offers a comprehensive range of services and facilities including a supermarket, doctors surgery, dentist, veterinary practice, garaging, cafes, restaurants and pubs, as well as excellent schools in both the state and private sector. The property is within 10 miles of Woodbridge and the county town of Ipswich is just 15 miles. From here there are main line railway services to London's Liverpool Street station scheduled to take just over the hour. The Heritage Coast at Aldeburgh is within 20 miles, with the other coastal resorts of Thorpeness, Southwold, Walberswick and Orford in the Suffolk Coast and Heaths Area of Outstanding Natural Beauty, all within easy reach.  

Description
Planning permission was granted on 5th October 2023 (Reference DC/23/0942/FUL) for the erection of a single storey two bedroom dwelling with vehicular access.  A copy of the planning permission, together with extracts of the consented plans, is included within these particulars.

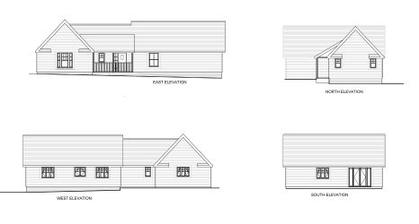
The planning permission provides for the construction of a spacious, detached bungalow, that extends to approximately 1,216 square feet (113 square metres) in all.  The proposed accommodation comprises an entrance hall, an open plan kitchen, dining and sitting room, a utility room, cloakroom and plant room.  In addition there is the principal bedroom with en-suite shower room, second double bedroom and a bathroom.  Outside there will be a generous parking and turning area immediately to the front of the property, whilst to the side and rear of the proposed dwelling will be the gardens. The rear garden faces almost due west and therefore enjoys the sun throughout the afternoon and into the evening.  

Prospective purchasers should note that the planning permission only relates to the front part of the site, and that the land to the rear of the plot, beyond the established hedge line, will still be classed as agricultural land.

Community Infrastructure Levy
Community Infrastructure Levy (CIL) is payable and this was set at £36,315 on 10th November 2023 (reference LN00006015).  However, if the plot is purchased by a self builder/owner occupier, then we understand that exemption from CIL may be available.  Any detailed enquiries relating to CIL should be referred to the Local Planning Authority, East Suffolk Council; email - CIL@eastsuffolk.gov.uk; Tel: 01502 523059. 

Purchaser Obligations 
The new buyer will be obliged to fence the northern, southern and western boundaries to a minimum standard of post and two rail design with rabbit proof fencing within six months of the sale completing.   

Services
We understand that mains water and drainage is available in the public highway, and that electricity is available nearby overhead.  However prospective purchasers will need to satisfy themselves in relation to the location and capacity of services.  

Viewing
Strictly by prior appointment with the agents and thereafter at any time with particulars in hand.

Local Authority
East Suffolk Council, East Suffolk House, Station Road, Melton, Woodbridge, Suffolk IP12 1RT; Tel: 01394 383789.
 
NOTES
1. Every care has been taken with the preparation of these particulars, but complete accuracy cannot be guaranteed.  If there is any point, which  is of particular importance to you, please obtain professional confirmation. Alternatively, we will be pleased to check the information for you.  These Particulars do not constitute a contract or part of a contract.  All measurements quoted are approximate.  The Fixtures, Fittings & Appliances have not been tested and therefore no guarantee can be given that they are in working order.  Photographs are reproduced for general information and it cannot be inferred that any item shown is included.  No guarantee can be given that any planning permission or listed building consent or building regulations have been applied for or approved. The agents have not been made aware of any covenants or restrictions that may impact the property, unless stated otherwise.  Any site plans used in the particulars are indicative only and buyers should rely on the Land Registry/transfer plan.

2.  The Money Laundering, Terrorist Financing and Transfer of Funds (Information on the Payer) Regulations 2017 require all Estate Agents to obtain sellers’ and buyers’ identity.

3. In the unlikely situation of our client considering an offer prior to auction, a premium price would have to be put forward and the purchaser would be required to sign the contract and put down a 10% deposit and pay the Buyers Administration Charge, well in advance of the auction date.  An offer will not be considered unless a potential buyer has read the legal pack and is in a position to immediately sign the contract.  The seller is under no obligation to accept such an offer.   It should be noted that Clarke and Simpson cannot keep all interested parties updated and at times will be instructed to accept an offer and exchange contracts without going back to any other parties first. 

4.  Additional fees:  Buyers Administration Charge - £900 including VAT (see Buying Guide).  Disbursements - please see the Legal Pack for any disbursements listed that may become payable by the purchaser upon completion.

5. The guide price is an indication of the sellers minimum expectations.  This is not necessarily the figure that the property will sell for and may change at any time prior to the auction.  The property will be offered subject to a reserve (a figure below which the auctioneer cannot sell the property during the auction) which we will expect to be set within the guide range of no more than 10% above a single figure guide.

6. Drawings included by kind permission of Messrs Hollins Architects.

7. We are acting on behalf of Charitable Trustees.

 June 2024

* Generally speaking Guide Prices are provided as an indication of each seller's minimum expectation, i.e. 'The Reserve'. They are not necessarily figures which a property will sell for and may change at any time prior to the auction. Virtually every property will be offered subject to a Reserve (a figure below which the Auctioneer cannot sell the property during the auction) which we expect will be set within the Guide Range or no more than 10% above a single figure Guide.

Loading the bidding panel...

Agreement Documents

Additional Documents

Related Documents

Make an Enquiry

Submit an enquiry and someone will be in contact shortly.

 
*  
*  
*
*
*

Share