Lot 1 - Pyes Hall, London Road, Wrentham, Beccles, Suffolk, NR34 7HL

  • Unconditional Online Auction Sale
  • Guide Price* : £650,000
  • Bedrooms: 7
  • Bathrooms: 3
  • Reception Rooms: 3

For Sale by Online Auction A superb and substantial Hall extending to over 4500 sq ft along with an excellent range of Suffolk barns, in grounds of 2 acres and located just 2.5 miles from the sea.

Description

Hall - Three reception rooms, study, kitchen, utility room, pantry, stores and cloakroom. Cellar. Seven first floor bedrooms and three bathrooms. Substantial garaging and store buildings.
Range of brick and timber Suffolk barns that have scope for re-development.
Grounds in all 2 acres.

For Sale by Online Auction - Tuesday 25th February 2025

Method of Sale
The property is being offered for sale by Unconditional Timed Online Auction on Tuesday 25th February 2025 and on the assumption the property reaches the reserve price, exchange of contracts will take place upon the fall of the electronic gavel with completion occurring 20 working days thereafter. For details of how to bid please read our Online Auction Buying Guide. 

The Seller’s solicitor has prepared an Auction Legal Pack.  This will be available to view online and interested parties should Register online to receive updates.  If you are viewing a hard set of these particulars or via Rightmove or alike, please visit the Online Property Auctions section of Clarke and Simpson’s website to Watch, Register and Bid. 

Seller’s Solicitors
The seller’s solicitor are Atkins Dellow; Address; 7 Whiting Street, Bury St Edmunds, Suffolk IP33 1NX. For the attention of: Jessica Smith; Tel: 01284 767766 ; Email: jessica.smith@atkinsdellow.com. We recommend that interested parties instruct their solicitor to make any additional enquiries prior to the auction. 

Directions
Heading north on the A12 proceed through Blythburgh and bypass Wangford. Just before entering Wrentham, Pyes Hall will be found on the left hand side.
What3Words: skill.goat.bookings

Location
The property is located on the edge of the village of Wrentham. The village benefits from a shop, public houses and a Black Dog Deli.  There is also a village hall and sporting facilities.  The property is just off the A12 with excellent links to Lowerstoft and Great Yarmouth to the North and Ipswich and London to the South.  The Suffolk Coast and Heaths AONB, and seaside resort of Southwold is just a few minutes drive from the village with its thriving high street, numerous pubs and restaurants and its famous sandy beach and traditional seaside pier. The town of Beccles is within nine miles. The property is a little over two miles to the beautiful coastline at Covehithe, where the ruins of the once glorious medieval St Andrews Church can be seen. The surrounding countryside of the Suffolk Heritage Coast is designated an Area of Outstanding Natural Beauty and includes such attractions as the nearby Dunwich Forest, Minsmere Birds Reserve, as well as Henham Park and the Benacre and Covehithe Broads.

Description
Pyes Hall is a handsome Grade II Listed farmhouse believed to date from the 16th Century, of timber framed construction with brick elevations under a tiled roof. It is anticipated that a buyer will wish to carry out a full refurbishment programme.

The hall sits beside a collection of brick and timber framed Suffolk barns, which are deemed to be curtilage listed and one of which is individually Grade II Listed. It is anticipated that, subject to the normal consents, the barns could be converted to a full residential or holiday let use.

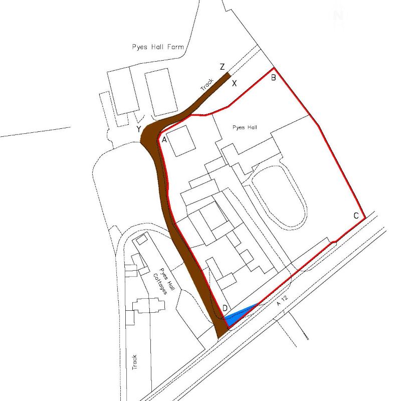
The hall and additional range of barns have separate driveways. The hall’s drive leads to a parking area adjacent to which are a range of garages and stores, one of which is of brick construction under a tiled roof, the other of timber under a thatched roof. A door to the side of the hall leads to a hallway, off which is the cellar, kitchen, boiler room and the first of three reception rooms. Off the boiler room is a spacious utility and store room. There are three particularly spacious reception rooms as well as a study, pantry and cloakroom. On the first floor are seven bedrooms along with three bathrooms. There are two sets of stairs leading up to the attic rooms. These are ideal for storage but would have in the past be used as additional staff bedrooms.

The house is surrounded by gardens which are predominantly laid to grass and contain mature trees. In all, the grounds extend to 2 acres. The range of barns, which are accessed via a separate drive upon which the property has a right of way, are made up of a number of buildings. There is a most impressive thatched timber framed Suffolk barn which linked to a attractive range of red brick buildings by more modern agricultural units. In addition is a further thatched timber barn and a detached brick and timber red brick barn under a tiled roof.
Viewing Strictly by appointment with the agent. Not all of the property is safe and in particular, it should be noted there is a pit in the thatched barn. Those viewing should take great care.

Services
Mains water
Mains electricity (the supply to the farm buildings that are being sold has been disconnected)
Private drainage system (located outside the grounds but with rights to maintain/empty).
Oil fired central heating system.
Please refer to the Auction Legal Pack for a services plan.
Broadband To check the broadband coverage available in the area click this link –
https://checker.ofcom.org.uk/en-gb/broadband-coverage

Mobile Phones To check the mobile phone coverage in the area click this link –
https://checker.ofcom.org.uk/en-gb/mobile-coverage

EPC Rating = G (Copy available in the Auction Legal Pack)

Council Tax Band G; £3,469.43 payable per annum 2024/2025

Local Authority East Suffolk Council; East Suffolk House, Station Road, Melton, Woodbridge, Suffolk IP12 1RT; Tel: 0333 016 2000

NOTES
1.  Every care has been taken with the preparation of these particulars, but complete accuracy cannot be guaranteed.  If there is any point, which  is of particular importance to you, please obtain professional confirmation. Alternatively, we will be pleased to check the information for you.  These Particulars do not constitute a contract or part of a contract.  All measurements quoted are approximate.  The Fixtures, Fittings & Appliances have not been tested and therefore no guarantee can be given that they are in working order.  Photographs are reproduced for general information and it cannot be inferred that any item shown is included.  No guarantee can be given that any planning permission or listed building consent or building regulations have been applied for or approved. The agents have not been made aware of any covenants or restrictions that may impact the property, unless stated otherwise. Any site plans used in the particulars are indicative only and buyers should rely on the Land Registry/transfer plan.

2. The Money Laundering, Terrorist Financing and Transfer of Funds (Information on the Payer) Regulations 2017 require all Estate Agents to obtain sellers’ and buyers’ identity.

3. In the unlikely situation of our client considering an offer prior to auction, a premium price would have to be put forward and the purchaser would be required to sign the contract and put down a 10% deposit and pay the Buyers Administration Charge, well in advance of the auction date.  An offer will not be considered unless a potential buyer has read the legal pack and is in a position to immediately sign the contract.  The seller is under no obligation to accept such an offer.   It should be noted that Clarke and Simpson cannot keep all interested parties updated and at times will be instructed to accept an offer and exchange contracts without going back to any other parties first. 

4. Additional fees:  Buyers Administration Charge - £900 including VAT (see Buying Guide).  Disbursements - please see the Legal Pack for any disbursements listed that may become payable by the purchaser upon completion.

5. The guide price is an indication of the sellers minimum expectations.  This is not necessarily the figure that the property will sell for and may change at any time prior to the auction.  The property will be offered subject to a reserve (a figure below which the auctioneer cannot sell the property during the auction) which we will expect to be set within the guide range of no more than 10% above a single figure guide. January 2025




* Generally speaking Guide Prices are provided as an indication of each seller's minimum expectation, i.e. 'The Reserve'. They are not necessarily figures which a property will sell for and may change at any time prior to the auction. Virtually every property will be offered subject to a Reserve (a figure below which the Auctioneer cannot sell the property during the auction) which we expect will be set within the Guide Range or no more than 10% above a single figure Guide.

Loading the bidding panel...

Agreement Documents

Additional Documents

Related Documents

Make an Enquiry

Submit an enquiry and someone will be in contact shortly.

 
*  
*  
*
*
*

Share