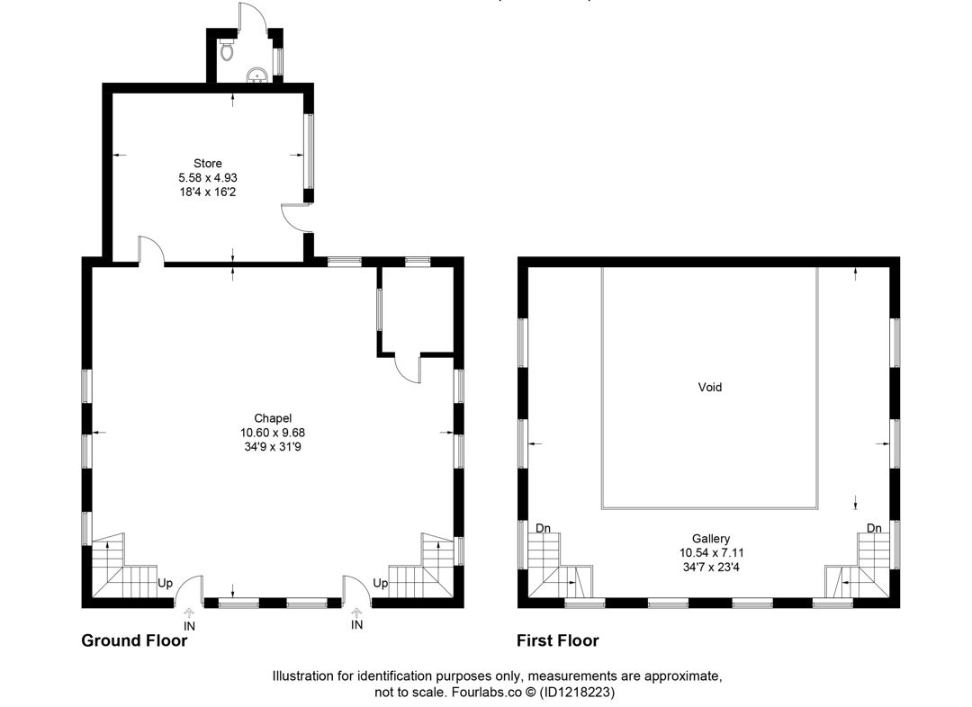
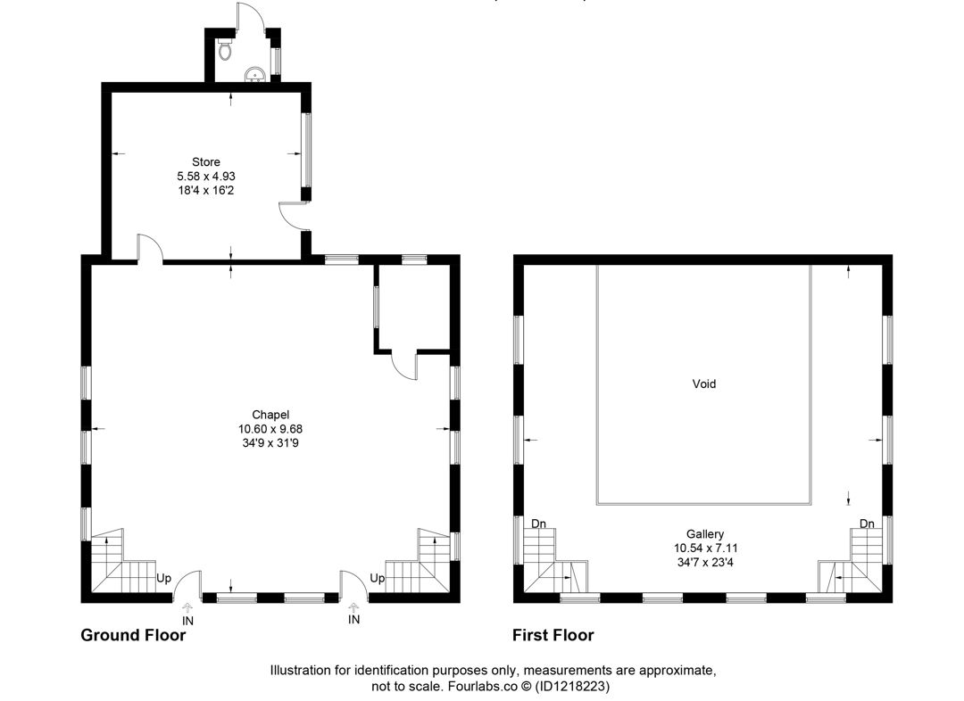
Baptist chapel extending to 190sq.m (2043sq.ft) of brick construction believed to date back to 1808.
Potential for alternative uses, subject to planning permission.
Grounds of approximately 0.24 acres including graveyard
For Sale By Timed Online Auction - 25th February 2026
The property is offered for sale by Unconditional Timed Online Auction on 25th February 2026 and on the assumption the property reaches the reserve price, exchange of contracts will take place upon the fall of the electronic gavel with completion occurring 20 working days thereafter. For details of how to bid please read our Online Auction Buying Guide.
The vendor’s solicitor has prepared an Auction Legal Pack. This is available to view online and interested parties should register online to receive updates. If you are viewing a hard set of these particulars or via Rightmove or alike please visit the Online Property Auctions section of Clarke and Simpson’s website to Watch, Register and Bid.
Seller’s Solicitors
The seller’s solicitors are Wellers Law Group; 65 Leadenhall Street, London EC3A 2AD. For the attention of Isabella Pavitt, email: isabella.pavitt@wellerslawgroup.com. We recommend that interested parties instruct their solicitor to make any additional enquiries prior to the auction.
Location
The property is located in the heart of the popular village of Charsfield which benefits from a primary school and first class playing fields with tennis courts and children’s playing equipment. The property is located in an excellent position for access to Framlingham (5 miles), Wickham Market (4 miles), Woodbridge (6 miles) and the county town of Ipswich (11 miles). Both Framlingham and Woodbridge are well known for their excellent schools in both the state and private sectors, with Framlingham having Thomas Mills High School and Framlingham College, and Woodbridge being home to Farlingaye High School and Woodbridge School. Woodbridge is located on the banks of the River Deben and offers a wide variety of shops and restaurants. The medieval market town of Framlingham, with its Norman castle, is also home to a good range of local shops and businesses. Ipswich has national stores, as well as trains to London’s Liverpool Street, scheduled to take just over the hour.
Description
A former Baptist chapel believed to date back to 1808 with later extensions. The accommodation includes a main chapel with first floor gallery, rear store/meeting room and outside WC. The rooms are bright and spacious with high levels of natural light from numerous large windows on all sides of the building.
In all the accommodation extends to 190sqm (2,043 sq.ft).
Outside
To property adjoins The Street to the front and Chapel Lane to the side of the property. To the rear of the Chapel is a range of outbuildings/stores and lawned area, with graveyard beyond. For the avoidance of doubt, the graveyard is to be sold with the property and is to remain open to the public. The property does not benefit from off-road parking, however unrestricted on-street parking is available within the village. In addition, the property adjoins Charsfield Recreational Ground where further parking is available. The grounds extend, in all, to 0.24 acres (0.09ha).
Planning
We believe the planning use class to be: F1 (Learning and Non-residential Institutions). The property may have potential for alternative uses such as commercial (Class E) or residential, subject to planning permission. However, interested parties are advised to conduct their own investigations with the relevant planning authority.
Viewing Strictly by appointment with the agent.
Services We are informed mains water and electricity are connected to the property, in addition to mains foul drainage. Heating is via electric panel heaters.
EPC Exempt due to place of worship status.
Rateable Value N/A
Local Authority East Suffolk Council; East Suffolk House, Station Road, Melton, Woodbridge, Suffolk
IP12 1RT; Tel: 0333 016 2000.
NOTES
1. Every care has been taken with the preparation of these particulars, but complete accuracy cannot be guaranteed. If there is any point, which is of particular importance to you, please obtain professional confirmation. Alternatively, we will be pleased to check the information for you. These Particulars do not constitute a contract or part of a contract. All measurements quoted are approximate. The Fixtures, Fittings & Appliances have not been tested and therefore no guarantee can be given that they are in working order. Photographs are reproduced for general information and it cannot be inferred that any item shown is included. No guarantee can be given that any planning permission or listed building consent or building regulations have been applied for or approved. The agents have not been made aware of any covenants or restrictions that may impact the property, unless stated otherwise. Any site plans used in the particulars are indicative only and buyers should rely on the Land Registry/transfer plan.
2. The Money Laundering, Terrorist Financing and Transfer of Funds (Information on the Payer) Regulations 2017 require all Estate Agents to obtain sellers’ and buyers’ identity.
3. In the unlikely situation of our client considering an offer prior to auction, a premium price would have to be put forward and the purchaser would be required to sign the contract and put down a 10% deposit and pay the Buyers Administration Charge, well in advance of the auction date. An offer will not be considered unless a potential buyer has read the legal pack and is in a position to immediately sign the contract. The seller is under no obligation to accept such an offer. It should be noted that Clarke and Simpson cannot keep all interested parties updated and at times will be instructed to accept an offer and exchange contracts without going back to any other parties first.
4. Additional fees: Buyers Administration Charge - £1,200 including VAT (see Buying Guide). Disbursements - please see the Legal Pack for any disbursements listed that may become payable by the purchaser upon completion.
The guide price is an indication of the sellers minimum expectations. This is not necessarily the figure that the property will sell for and may change at any time prior to the auction. The property will be offered subject to a reserve (a figure below which the auctioneer cannot sell the property during the auction) which we will expect to be set within the guide range of no more than 10% above a single figure guide.
January 2026
* Generally speaking Guide Prices are provided as an indication of each seller's minimum expectation, i.e. 'The Reserve'. They are not necessarily figures which a property will sell for and may change at any time prior to the auction. Virtually every property will be offered subject to a Reserve (a figure below which the Auctioneer cannot sell the property during the auction) which we expect will be set within the Guide Range or no more than 10% above a single figure Guide.
Submit an enquiry and someone will be in contact shortly.
By setting a proxy bid, the system will automatically bid on your behalf to maintain your position as the highest bidder, up to your proxy bid amount. If you are outbid, you will be notified via email so you can opt to increase your bid if you so choose.
If two of more users place identical bids, the bid that was placed first takes precedence, and this includes proxy bids.
Another bidder placed an automatic proxy bid greater or equal to the bid you have just placed. You will need to bid again to stand a chance of winning.