Lot 2 - Barns to the north of The Lodge, New Road, Worlingworth, Woodbridge, Suffolk, IP13 7PA

  • Unconditional Online Auction Sale
  • Guide Price* : £200,000

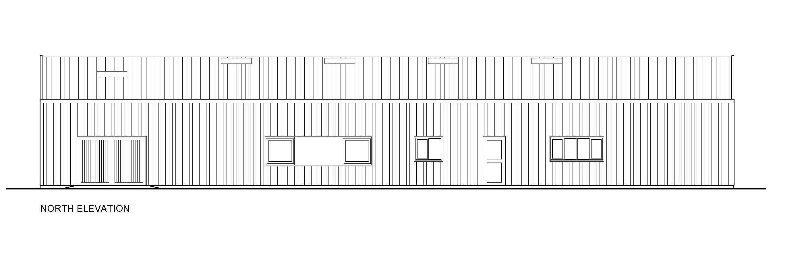
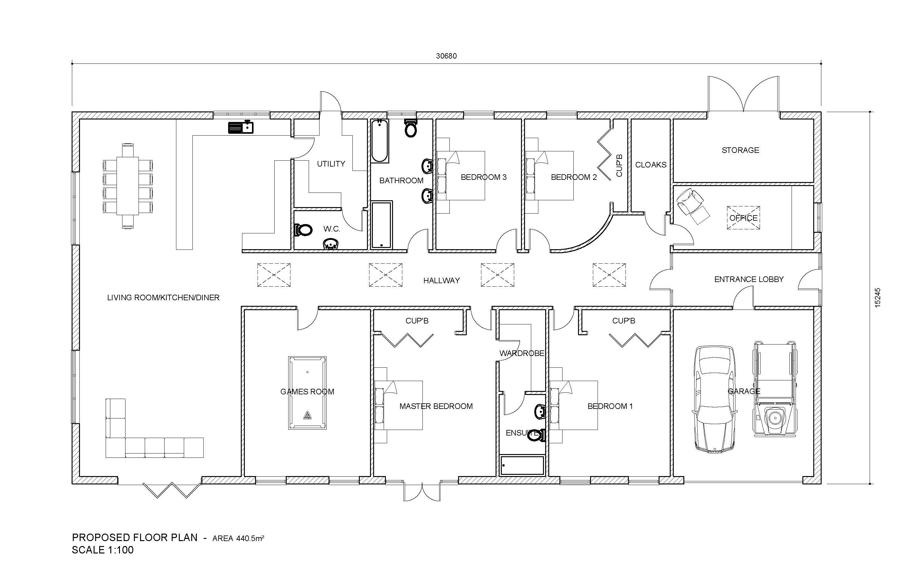
FOR SALE BY ONLINE AUCTION - Two substantial modern barns, one with Permitted Development for residential conversion standing in over an acre - Barn with Class Q Permitted Development for change of use to a dwelling house that will comprise living room, dining room, games room, utility room and cloakroom. Four bedrooms, two bath/shower rooms, office, store and garage. Grounds totalling 1.1 acres that include a lagoon.

Description

Method of Sale
The property is offered for sale by Unconditional Timed Online Auction on 26th May 2021 and on the assumption the property reaches the reserve price, exchange of contracts will take place upon the fall of electronic gavel with completion occurring 20 business days later. For details of how to bid please read our Online Auction Buying Guide.

The vendor's solicitor is preparing an Auction Legal Pack. This will be available to view online and interested parties should Register online to receive updates. If you are viewing a hard set of these particulars or via Rightmove or alike please visit the Online Property Auctions section of Clarke and Simpson's website to Watch/Register/Bid.

Sellers Solicitors
The sellers solicitors are Birketts, 141 - 145 Princes Street, Ipswich, Suffolk IP1 1QJ; Tel: 01473 406317; Email: imogen-grainger@birketts.co.uk. We recommend that interested parties instruct their solicitor to make any additional enquiries prior to the auction.

Location
The property is located within the Parish of Worlingworth, half a mile to the north of the village itself on a country road, surrounded by farmland and adjacent to another dwelling/farmyard. Worlingworth benefits from a primary school. The property is just 6 miles from Framlingham, which is best known locally for its fine medieval castle. Framlingham offers a good choice of schooling in both the state and private sectors and also benefits from an excellent variety of shops including a Co-operative supermarket, a medical centre, public houses and restaurants. The delightful small town of Eye is just over 7.5 miles away and offers day-to-day shopping facilities, as well as further schooling. It is well known for its motte and bailey castle and its varied cultural activities throughout the year, which include theatre productions, classical music concerts and an annual art exhibition. Further afield there is an excellent network of public footpaths and the popular coastal town of Aldeburgh and the Snape Maltings Concert Hall, home to the Aldeburgh Festival, are within easy reach. For commuters, the main railway station at Diss provides direct services to London's Liverpool Street Station, Ipswich and Norwich. Located approximately 14 miles from the property, Diss also offers an eighteen hole golf course, tennis and squash clubs, an indoor swimming pool and gym, as well as Tesco, Morrisons and Aldi supermarkets. Approximately 20 miles from the property is the county town of Ipswich, which offers further national shops and services.

Description
Prior Approval was 'granted' by Mid Suffolk District Council to convert one of the buildings on the site to provide a single dwelling under reference DC/19/03434 on 15th November 2019. It is understood that the works must be completed within three years of this date but interested parties should undertake their own investigations in that regard. Copies of some of the plans are included within these particulars. Further documents and plans are available from the Mid Suffolk District council planning website.

The Permitted Development allows for the demolition of one of the barns on the site and the change of use of the other to a dwelling and it is understood that the converted barn will extend to approximately 440m² (4736 sq ft). It should be noted that the Permitted Development area is outlined in blue on the Sale Plan within these particulars. Should a buyer wish to apply for Permitted Development to convert the other barn on the site or Planning Permission to use the additional land outlined in red for garden/parking, this will be their responsibility post purchase. It should be noted that the property is not sold with overage or a covenant restricting further residential development of the site.

Services
It will be the buyers responsibility to sever the electricity and water supply that currently runs to the barns from the adjoining Lodge and the buyer will be responsible for installing new services and a sewage treatment plant. Interested parties should make their own investigations with regard to connecting new services.

Local Authority
Mid Suffolk District Council, Endeavour House, 8 Russell Rd, Ipswich IP1 2BX; Tel: 0345 6066067

Architect
Hollins, The Guildhall, Framlingham, Suffolk IP13 9BD; Tel: 01728 723959; Email: all@hollins.co.uk. Extracts of the plans are used by kind permission of the architects.

Community Infrastructure Levy (CIL)
It is understood that the CIL liability is yet to be assessed. However, on the basis that the property has been used for continuous agricultural use in the last few years, it may be possible for a buyer to apply for a £0 liability notice. Interested parties should make their own investigations with regard to any CIL payment and will be responsible for any CIL payments. It is understood an owner occupier might be able to apply for an exemption from CIL but again, interested parties should make their own investigations.

Viewing
The property can be viewed at any reasonable hour with particulars in hand. All necessary safety measures should be taken by interested parties with regard to accessing the barns and avoiding the lagoon.

NOTES
1. These particulars are produced in good faith, are set out as a general guide only and do not constitute any part of a contract. No responsibility can be accepted for any expenses incurred by intending purchasers or lessees in inspecting properties which have been sold, let or withdrawn. Interested parties should rely on their own/their surveyors investigations as to the construction type of the property and its condition. No warranty can be given for any of the services or equipment at the property and no tests have been carried out to ensure that heating, electrical or plumbing systems and equipment are fully operational. Any distances, room aspects and measurements which are given are approximate only. Any plans are indicative only and may not be the same as the transfer plan/s. No guarantee can be given that any planning permissions or listed building contents or building regulations have been applied for or approved. The agents have not been made aware of any covenants or restrictions that may impact the property, unless stated otherwise

2. Under Money Laundering, Terrorist Financing and Transfer of Funds (Information on the Payer) Regulations 2017 we, as Estate Agents, are required to obtain identification from buyers in the form of the photo page of your passport or a photo driving licence. The document must be in date. In addition, we need proof of address in the form of a utility bill with the name and address of the buyer. This must not be more than three months old. We are also under obligation to check where the purchase funds are coming from. When you register to bid you will be prompted to provide the appropriate money laundering documentation.

3. In the unlikely situation of our client considering an offer prior to auction, a premium price would have to be put forward and the purchaser would be required to sign the contract and put down a 10% deposit and pay the Buyers Administration Charge, well in advance of the auction date. An offer will not be considered unless a potential buyer has read the legal pack and is in a position to immediately sign the contract. The seller is under no obligation to accept such an offer. It should be noted that Clarke and Simpson cannot keep all interested parties updated and at times will be instructed to accept an offer and exchange contracts without going back to any other parties first.

4. Additional fees: Buyers Administration Charge - £900 including VAT (see Buying Guide). Disbursements - please see the Legal Pack for any disbursements listed that may become payable by the purchaser upon completion.

5. The guide price is an indication of the sellers minimum expectations. This is not necessarily the figure that the property will sell for and may change at any time prior to the auction. The property will be offered subject to a reserve (a figure below which the auctioneer cannot sell the property during the auction) which we will expect to be set within the guide range of no more than 10% above a single figure guide.

6. The property is to be sold with a covenant stating that it is not to be used for the rearing of livestock.

7. Any items left at the property upon completion will become the responsibility/ownership of the buyer.

8. The Lodge to the south is also being sold as a separate lot.

* Generally speaking Guide Prices are provided as an indication of each seller's minimum expectation, i.e. 'The Reserve'. They are not necessarily figures which a property will sell for and may change at any time prior to the auction. Virtually every property will be offered subject to a Reserve (a figure below which the Auctioneer cannot sell the property during the auction) which we expect will be set within the Guide Range or no more than 10% above a single figure Guide.

Loading the bidding panel...

Agreement Documents

Additional Documents

Related Documents

Make an Enquiry

Submit an enquiry and someone will be in contact shortly.

 
*  
*  
*
*
*

Share