Lot 1 - 17-19-19A, High Street, Saxmundham, Suffolk, IP17 1DF

  • Unconditional Online Auction Sale
  • Guide Price* : 255,000
  • Bedrooms: 5

FOR SALE BY ONLINE AUCTION A prominent freehold investment opportunity comprising three residential apartments let on ASTs together with the reversionary interest of the ground floor retail units in the centre of the popular market town of Saxmundham.

Description

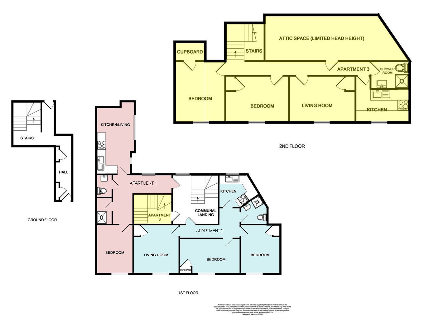
An opportunity to acquire the freehold of this substantial building that comprises three generous apartments arranged over the first and second floors and generating a total gross income of £15,460 per annum, together with the reversionary interest in the two ground floor retail units.

FOR SALE BY TIMED ONLINE AUCTION - 2nd December 2022

Method of Sale
The property is offered for sale by Unconditional Timed Online Auction on 2nd December 2022 and on the assumption the property reaches the reserve price, exchange of contracts will take place upon the fall of the electronic gavel with completion occurring 10 working days thereafter. For details of how to bid please read our Online Auction Buying Guide.

The sellers’ solicitor has prepared an Auction Legal Pack. This is available to view online and interested parties should Register online to receive updates. If you are viewing a hard set of these particulars or via Rightmove or alike please visit the Online Property Auctions section of Clarke and Simpson’s website to Watch, Register and Bid.

Sellers’ Solicitors
The sellers’ solicitor is Sprake & Kingsley Solicitors; 16 Broad Street, Bungay, Suffolk NR35 1EN Tel: 01986 892721. For the attention of Nick Kinglsey - Email: nkingsley@sprakekingsley.co.uk. We recommend that interested parties instruct their solicitor to make any additional enquiries prior to the auction.

Location
The premises will be found in a prominent position on the High Street, in the very heart of Saxmundham and within easy walking distance of the Tesco and Waitrose supermarkets. The high street offers cafes, businesses and all day to day shopping facilities. Also within walking distance is the railway station which has regular train services to London’s Liverpool Street station via Ipswich. The doctors surgery is also nearby. To the east of Saxmundham lies the Suffolk Heritage Coast with popular centres including Aldeburgh, Thorpeness, Walberswick, Southwold and Orford. The renowned Snape Maltings Concert Hall, home to Aldeburgh Festival is approximately 3 miles to the south and the county town of Ipswich lies under 22 miles to the south-west. Also nearby is the Sizewell B Power Station, which is owned and operated by EDF. There are plans in place to develop Sizewell C which will be a large infrastructure project for the area and one that will generate considerable inward investment during the construction phase and undboutedly have a direct and positive impact on the local economy.

Description
The premises comprises the freehold interest in a prominent Victorian building in the centre of this popular market town, that is subject to five long leasehold interests. Two of those long leasehold interests comprise the commercial/retail premises on the ground floor, which have been sold off to unconnected parties. The three long leasehold interests comprising the apartments are owned by one of the vendors/owners of the freehold and have been let on assured shorthold tenancies. The new freehold owner of the premises will own and control the apartment leasehold interests, which can simply be surrendered (merged with the freehold) without the need to involve any third parties. In all, the premises generates a total gross income of £15,460 per annum.

The three apartments all benefit from modern fitted kitchens, bathrooms and gas fired central heating. There is a communal courtyard to the rear. A summary of the tenancy arrangements is provided as an image (see photographs).

VAT
The property has not been elected for VAT.

Viewing
Strictly by appointment with the agent.

Services
Mains water, electricity, gas and drainage.

Local Authority
East Suffolk Council; East Suffolk House, Station Road, Melton, Woodbridge, Suffolk IP12 1RT; Tel: 0333 016 2000

Council Tax
Flats 1, 2 and 3 are all Band A, with the amount payable by each flat for the year 2022/2023 being £1,337.30.

NOTES
1. Every care has been taken with the preparation of these particulars, but complete accuracy cannot be guaranteed.  If there is any point, which is of particular importance to you, please obtain professional confirmation. Alternatively, we will be pleased to check the information for you.  These Particulars do not constitute a contract or part of a contract. All measurements quoted are approximate.  The Fixtures, Fittings & Appliances have not been tested and therefore no guarantee can be given that they are in working order.  Photographs are reproduced for general information and it cannot be inferred that any item shown is included. No guarantee can be given that any planning permission or listed building consent or building regulations have been applied for or approved. The agents have not been made aware of any covenants or restrictions that may impact the property, unless stated otherwise. Any site plans used in the particulars are indicative only and buyers should rely on the Land Registry/transfer plan.
2. The Money Laundering, Terrorist Financing and Transfer of Funds (Information on the Payer) Regulations 2017 require all Estate Agents to obtain sellers and buyers identity.
3. In the unlikely situation of our client considering an offer prior to auction, a premium price would have to be put forward and the purchaser would be required to sign the contract and put down a 10% deposit and pay the Buyers Administration Charge, well in advance of the auction date. An offer will not be considered unless a potential buyer has read the legal pack and is in a position to immediately sign the contract. The seller is under no obligation to accept such an offer. It should be noted that Clarke and Simpson cannot keep all interested parties updated and at times will be instructed to accept an offer and exchange contracts without going back to any other parties first.
4. Additional fees: Buyers Administration Charge - £900 including VAT (see Buying Guide). Disbursements - please see the Legal Pack for any disbursements listed that may become payable by the purchaser upon completion.
5. The guide price is an indication of the sellers minimum expectations. This is not necessarily the figure that the property will sell for and may change at any time prior to the auction. The property will be offered subject to a reserve (a figure below which the auctioneer cannot sell the property during the auction) which we will expect to be set within the guide range of no more than 10% above a single figure guide.
October 2022

Council Tax Band

A

* Generally speaking Guide Prices are provided as an indication of each seller's minimum expectation, i.e. 'The Reserve'. They are not necessarily figures which a property will sell for and may change at any time prior to the auction. Virtually every property will be offered subject to a Reserve (a figure below which the Auctioneer cannot sell the property during the auction) which we expect will be set within the Guide Range or no more than 10% above a single figure Guide.

Loading the bidding panel...

Agreement Documents

Additional Documents

Related Documents

Make an Enquiry

Submit an enquiry and someone will be in contact shortly.

 
*  
*  
*
*
*

Share