9, Riby Road, Felixstowe, Suffolk, IP11 7QB

  • Unconditional Online Auction Sale
  • Guide Price* : £475,000
  • Bedrooms: 4
  • Bathrooms: 1
  • Reception Rooms: 3

For Sale By Online Auction An exciting development opportunity comprising a 1920s four bedroom house requiring complete refurbishment, together with pp within the grounds for the construction of a pair of semi-detached dwellings, just a short distance from the sea front.

Description

A development site comprising a dilapidated 1920s ‘Arts & Crafts’ detached four bedroom house on a site of approximately 0.26 acres, with PP within the grounds for the construction of a pair of substantial semi-detached dwellings.

For Sale By Timed Online Auction - 5th July 2023

Method of Sale
The property is being offered for sale by Unconditional Timed Online Auction on 5th July 2023 and on the assumption the property reaches the reserve price, exchange of contracts will take place upon the fall of the electronic gavel with completion occurring 10 working days thereafter. For details of how to bid please read our Online Auction Buying Guide. 

The seller’s solicitor has prepared an Auction Legal Pack.  This will be available to view online and interested parties should Register online to receive updates.  If you are viewing a hard set of these particulars or via Rightmove or alike, please visit the Online Property Auctions section of Clarke and Simpson’s website to Watch, Register and Bid. 

Seller’s Solicitors
The seller’s solicitor is Adams Kaye, Pennine House, 28 Leman Street, London E1 8ER.  For the attention of: Paul Adams; email: p.adams@adamskaye.com. Tel: 0203 950 5261.  We recommend that interested parties instruct their solicitor to make any additional enquiries prior to the auction. 

Location
The property will be found in an established residential location to the west of the town centre and just a short distance from the seafront. Felixstowe is an attractive coastal town that benefits from all amenities including local schools, leisure facilities, a wide range of shopping facilities in the town centre, together with coffee shops, restaurants, a cinema, a train station and much more. Other features include the sea front with its sandy beach, newly designed pier and gardens together with waterfront restaurants. Nearby are the scenic estuaries of the River Deben and the River Orwell. Felixstowe is about 14 miles from the County Town of Ipswich.

Directions
Approaching the town on the Candlet Road (A154) turn right at the roundabout onto Garrison Lane. Continue for approximately half a mile turning left onto Orwell Road where signposted and then immediately right onto Riby Road, where the property will be found a short way along on the left hand side.

For those using the What3Words app: ///asleep.edge.spot

Description
9 Riby Road comprises an early 20th Century ‘Arts & Crafts’ four bedroom detached house on a site of approximately 0.26 acres. The house itself now warrants an extensive and all encompassing programme of renovation and refurbishment, and prospective purchasers should note that the property is also exhibiting structural faults for which a structural inspection report is available on request.

The accommodation currently comprises an entrance hall, sitting room, dining room, kitchen/breakfast room, cloakroom and rear hall on the ground floor, together with four bedrooms and a bathroom with separate WC on the first floor.

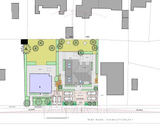
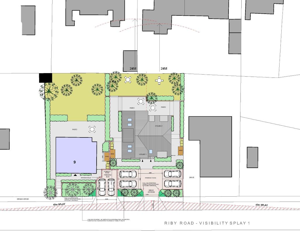
The site also benefits from planning permission for the construction of a pair of substantial semi-detached houses. The proposed houses are similar in design and each with a spacious entrance hall, living room, kitchen/dining room, utility room and cloakroom on the ground floor. On the first floor Plot 1 offers a master bedroom with walk-in wardrobe and en-suite shower room, guest double bedroom and bathroom, together with two further double bedrooms and a bathroom on the second floor. Plot 2 offers a master bedroom with en-suite shower room, two further double bedrooms and a bathroom on the first floor.

The plans provide for two new, separate entrances; one serving 9 Riby Road with the other serving the proposed new dwellings with respective parking and turning areas. To the rear there will be landscaped gardens as required.

Planning permission DC/21/3854/FUL dated 25th January 2023 refers and extracts of the plans that accompanied the planning permission are included within these particulars.

Schedule of Accommodation
9 Riby Road - Approx sq ft 1,743 - Approx sqm 162
Plot 1 - Approx sq ft 1,611 - Approx sqm 149.7
Plot 2 - Approx sq ft 1,091 - Approx sqm 101.4
TOTAL - Approx sq ft 4,445 - Approx sqm 413.1

Planning
As mentioned previously, planning permission has been granted for the retention of Riby House and construction of a pair of substantial semi-detached houses within the garden - planning permission DC/21/3854/FUL refers.

Prior to this permission being granted a ‘Pre-App’ was submitted to East Suffolk Council - DC/21/1728/PRE-APP refers, which sought officer views on the demolition of 9 Riby Road and the creation of two pairs of semi-detached houses on site, ie 4 dwellings in total, or the creation of 6 flats within one house. The Pre-App concluded that, whilst the principle of new residential development in this location is acceptable, 9 Riby Road has been identified as a Non-Designated Heritage Asset and therefore the demolition of that building would not be supported by the local planning authority unless it can be demonstrated that it meets Policy 11.6 (requiring developers to undertake design quality assessment).

Structural Inspection Report
Following the response to the ‘Pre-App’ the sellers commissioned Horizon Structures to produce a structural inspection report. Evidence of cracking is noted throughout 9 Riby Road and this is attributed to subsidence, (which the engineer thinks is probably caused by the failure of surface water drainage systems), lack of lateral restraint and timber rot within the floor joists. A copy of the structural inspection report is available on request.

Architects
Drawings are included by kind permission of Plaice Design Company Ltd, Architects & Technologists,
Tel: 01394 610844 or email: info@plaice.org.uk.

Community Infrastructure Levy
Community Infrastructure Levy (CIL) is payable and this was set at £17,494.37 on 22nd February 2023 (reference LN00005027).  Any detailed enquiries relating to CIL should be referred to the Local Planning Authority, East Suffolk Council; email - CIL@eastsuffolk.gov.uk; Tel: 01502 523059. 

The Accommodation
9 Riby Road - The House

Ground Floor
A wooden panelled front door with leaded light window set within a covered porch opens into the

Entrance Hall
With staircase rising to First Floor with small understairs storage cupboard, radiator, door to Storage Cupboard and doors off to

Sitting Room 7.58m x 4.27m (24’10 x 14’)
A large, twin aspect reception room with bay window incorporating a number of leaded light casement windows providing plenty of light and views of the front garden. Secondary window overlooking the side garden. The focal point of the room is the brick fireplace towards the rear of the room. Wooden boarded floor, radiators and part glazed door to the rear garden.

Dining Room 4.28m x 4.33m (14’ x 14’2)
Also with bay window providing plenty of light and views to the front. Small casement windows on the side elevation providing additional light. Fireplace with carved wood surround. Former serving hatch through to the Kitchen, radiator and boarded floor.

Kitchen/Breakfast Room 3.26m x 2.18m (10’8 x 7’2) 4.23m x 3.49m (13’10 x 11’5)
With large window on the rear elevation providing plenty of light and views of the garden. Basic range of fitted cupboard and drawer units. Shelved pantry recess with waste and plumbing connection for a washing machine. Former fireplace containing the gas fired boiler. Storage cupboards. Shelved recess, radiator and door to

Rear Hall
With door to the rear garden and door to Cloakroom.

Stairs from the Entrance Hall rise, via a half landing, to the

First Floor
With access to roof space, door to Airing Cupboard, door to Storage Cupboard and doors off to

Bedroom One 4.28m x 4.33m (14’ x 14’2)
With bay window on the front elevation overlooking Riby Road, the surrounding roofscape and towards the port of Felixstowe. Fitted wardrobe cupboard, radiator and former fireplace. Boarded floor.

Bedroom Two 3.28m x 3.27m (10’9 x 10’9)
With windows on the front and side elevation, sloping ceiling to part and wooden boarded floor.

Bedroom Three 4.23m x 4.27m (13’10 x 14’)
A twin aspect double bedroom with windows on the side and rear elevation. Fitted wardrobe cupboard, former fireplace and wooden boarded floor.

Bedroom Four 4.23m x 2.77m (13’10 x 9’1)
With large window on the side elevation providing a good amount of light. Built-in wardrobe, former fireplace and wooden boarded floor.

Bathroom
Partly sub-divided and with suite comprising panelled bath, pedestal wash basin and WC with high level cistern.

Outside
The property is set back from Riby Road with pedestrian access via a former gateway, with steps leading up to a concrete path that leads to the covered porch and front door. To the southern end of the site is a five bar gate that opens onto what was the former vehicular access/off-road parking area.

In all the gardens and grounds extend to approximately 0.26 acres (0.11 hectares) and comprise a number of established shrubs and fruit bearing trees. Concrete block and wooden fence panels form the boundaries to the sides and rear, together with an established hedge to the front.

Viewing
Strictly by appointment with the agent.

Services
Mains water, electricity, gas and drainage were previously connected to the site, although interested parties should satisfy themselves with regard to the provision and capacity of services.

EPC
Rating = E

Council Tax
Band E; £2,458 payable per annum 2022/2023

Local Authority
East Suffolk Council; East Suffolk House, Station Road, Melton, Woodbridge, Suffolk IP12 1RT; Tel: 0333 016 2000

NOTES
1.  Every care has been taken with the preparation of these particulars, but complete accuracy cannot be guaranteed.  If there is any point, which  is of particular importance to you, please obtain professional confirmation. Alternatively, we will be pleased to check the information for you.  These Particulars do not constitute a contract or part of a contract.  All measurements quoted are approximate.  The Fixtures, Fittings & Appliances have not been tested and therefore no guarantee can be given that they are in working order.  Photographs are reproduced for general information and it cannot be inferred that any item shown is included.  No guarantee can be given that any planning permission or listed building consent or building regulations have been applied for or approved. The agents have not been made aware of any covenants or restrictions that may impact the property, unless stated otherwise.  Any site plans used in the particulars are indicative only and buyers should rely on the Land Registry/transfer plan.

2. The Money Laundering, Terrorist Financing and Transfer of Funds (Information on the Payer) Regulations 2017 require all Estate Agents to obtain sellers’ and buyers’ identity.

3.  In the unlikely situation of our client considering an offer prior to auction, a premium price would have to be put forward and the purchaser would be required to sign the contract and put down a 10% deposit and pay the Buyers Administration Charge, well in advance of the auction date.  An offer will not be considered unless a potential buyer has read the legal pack and is in a position to immediately sign the contract.  The seller is under no obligation to accept such an offer.   It should be noted that Clarke and Simpson cannot keep all interested parties updated and at times will be instructed to accept an offer and exchange contracts without going back to any other parties first. 

4. Additional fees:  Buyers Administration Charge - £900 including VAT (see Buying Guide).  Disbursements - please see the Legal Pack for any disbursements listed that may become payable by the purchaser upon completion.

5. The guide price is an indication of the sellers minimum expectations.  This is not necessarily the figure that the property will sell for and may change at any time prior to the auction.  The property will be offered subject to a reserve (a figure below which the auctioneer cannot sell the property during the auction) which we will expect to be set within the guide range of no more than 10% above a single figure guide. 

June 2023

Council Tax Band

E

* Generally speaking Guide Prices are provided as an indication of each seller's minimum expectation, i.e. 'The Reserve'. They are not necessarily figures which a property will sell for and may change at any time prior to the auction. Virtually every property will be offered subject to a Reserve (a figure below which the Auctioneer cannot sell the property during the auction) which we expect will be set within the Guide Range or no more than 10% above a single figure Guide.

Loading the bidding panel...

Agreement Documents

Additional Documents

Related Documents

Make an Enquiry

Submit an enquiry and someone will be in contact shortly.

 
*  
*  
*
*
*

Share