Lot 1 - 28 Park Avenue, Saxmundham, Suffolk, IP17 1DR

  • Unconditional Online Auction Sale
  • Guide Price* : £125,000
  • Bedrooms: 3
  • Bathrooms: 1
  • Reception Rooms: 1

For Sale by Online Auction A three bedroom, semi-detached former local authority house located in the popular town of Saxmundham, a short walk from the amenities that the town provides.

Description

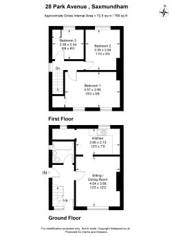
Entrance hall, sitting room, kitchen and ground floor bathroom. Three first floor bedrooms. Generous garden to rear and garden to front. Off-road parking. No onward chain.

For Sale By Timed Online Auction - 30th July 2025

Method of Sale
The property is being offered for sale by Unconditional Timed Online Auction on 30th July 2025 and on the assumption the property reaches the reserve price, exchange of contracts will take place upon the fall of the electronic gavel with completion on 27th August 2025. For details of how to bid please read our Online Auction Buying Guide.

The seller’s solicitor has prepared an Auction Legal pack. This will be available to view online and interested parties should Register online to receive updates. If you are viewing a hard set of these particulars or via Rightmove or alike, please visit the Online Property Auctions section of Clarke and Simpson’s website to Watch, Register and Bid.

Seller’s Solicitors
The seller’s solicitor is Flagship Conveyancing, 31 King Street, Norwich, Norfolk NR1 1PD; Email: conveyancing@flagship-group.co.uk. We recommend that interested parties instruct their solicitor to make any additional enquiries prior to the auction.

Note
For those wishing to bid at auction, it is essential that each buyer “wet” signs a copy of the Flagship Declaration of Interest Form. Please contact the agent for further details.

Location
28 Park Avenue is located in the popular town of Saxmundham. The busy market town of Saxmundham offers a good selection of local shops, supermarkets, including Waitrose and a Tesco, public houses and restaurants. There is also a railway station with trains from Lowestoft to Ipswich and a daily train direct from Saxmundham through to London's Liverpool Street Station. The Heritage Coast, with the popular resorts of Southwold, Walberswick, Dunwich, Aldeburgh and Thorpeness, is within about 5 miles. The Historic Market town of Framlingham lies about 7 miles to the west where there are excellent schools in both the state and private sector and further shopping facilities. The County Town of Ipswich, with direct rail links to Norwich to the north and London to the south, is approximately 21 miles to the south-west.

Directions
Heading from Framlingham on the B1116, continue through the villages of Sweffling and Rendham for approximately 6 miles until you reach the T-junction with the A12. Turn right and then immediately left into Rendham Road and bear right off Rendham Road into Mill Road. Towards the bottom of Mill Road there is a turning on your right into Mill Hill and Park Avenue is the first turning on your right. Continue towards the top of Park Avenue and the property can be found on your left hand side, identified by a Clarke and Simpson For Sale board.

For those using the What3Words app: ///remodels.bead.uncouth

Description
28 Park Avenue is a three bedroom, semi-detached former local authority house of standard construction with rendered and colourwashed elevation under a pitch tiled roof. Built circa 1932 and now in need of redecoration and refurbishment.

The accommodation is well laid out over two floors and comprises a side entrance into the entrance hall with window to the rear, wall mounted radiator, partially glazed door to the garden and stairs that rise to the first floor landing. Door off to the sitting room with window to the rear and wall mounted radiator. From here there is a door to the kitchen, with window to the front, a matching range of fitted wall and base units, stainless steel single drainer sink unit and tiled splashbacks to roll top worksurfaces. Space for electric cooker and appliances and wall mounted radiator. There is an opening from here into what would have been a pantry with an obscured window to the front, wall mounted gas-fired Vaillant boiler and area of worktop with space for appliances under. From the entrance hall there is also a door that leads to the ground floor bathroom, with obscure window to the side, panel bath with mixer tap over and handheld shower attachment, pedestal hand wash basin, close coupled WC, extractor fan and wall mounted radiator.

Stairs rise to the first floor landing with window to the side and access to the loft and doors off to the bedrooms. Bedroom one is a good size double room with two windows to the rear, wall mounted radiator and built-in cupboard over the stairs. Bedroom two is a small double room with window to the front and wall mounted radiator. Bedroom three is a single bedroom with window to the front, wall mounted radiator and built-in airing cupboard with pre-lagged water cylinder and slatted shelving.

Outside
From the highway, the property is approached via a driveway providing off-road parking with lawned garden to side. There is a pathway that leads to the side door and continues from the side of the property to the rear where there is gated access to the rear garden. The rear garden is generous in size and is mainly laid to lawn with a brick outbuilding at the bottom of the garden which is used for storage. The garden is enclosed by a mixture of close boarded and chain link fencing.

Note to Interested Parties
Please read and absorb the agents notes listed towards the end of these particulars.

Viewing Strictly by appointment with the agent.

Services Mains water, drainage, gas and electricity serve the property.

Broadband To check the broadband coverage available in the area click this link – https://checker.ofcom.org.uk/en-gb/broadband-coverage

Mobile Phones To check the mobile phone coverage in the area click this link – https://checker.ofcom.org.uk/en-gb/mobile-coverage

EPC Rating = C (Copy available from the agents upon request).

Council Tax Band B; £1,785.97 payable per annum 2025/2026.

Local Authority East Suffolk Council; East Suffolk House, Station Road, Melton, Woodbridge, Suffolk IP12 1RT; Tel: 01394 383789.

NOTES
1.   Every care has been taken with the preparation of these particulars, but complete accuracy cannot be guaranteed.  If there is any point, which  is of particular importance to you, please obtain professional confirmation. Alternatively, we will be pleased to check the information for you.  These Particulars do not constitute a contract or part of a contract.  All measurements quoted are approximate.  The Fixtures, Fittings & Appliances have not been tested and therefore no guarantee can be given that they are in working order.  Photographs are reproduced for general information and it cannot be inferred that any item shown is included.  No guarantee can be given that any planning permission or listed building consent or building regulations have been applied for or approved. The agents have not been made aware of any covenants or restrictions that may impact the property, unless stated otherwise.  Any site plans used in the particulars are indicative only and buyers should rely on the Land Registry/transfer plan.

2. The Money Laundering, Terrorist Financing and Transfer of Funds (Information on the Payer) Regulations 2017 require all Estate Agents to obtain sellers’ and buyers’ identity.

3.  In the unlikely situation of our client considering an offer prior to auction, a premium price would have to be put forward and the purchaser would be required to sign the contract and put down a 10% deposit and pay the Buyers Administration Charge, well in advance of the auction date.  An offer will not be considered unless a potential buyer has read the legal pack and is in a position to immediately sign the contract.  The seller is under no obligation to accept such an offer.   It should be noted that Clarke and Simpson cannot keep all interested parties updated and at times will be instructed to accept an offer and exchange contracts without going back to any other parties first. Please note that in this instance Flagship have stated that the property will be sold by auction only.

4. Additional fees:  Buyers Administration Charge - £900 including VAT (see Buying Guide).  Disbursements - please see the Legal Pack for any disbursements listed that may become payable by the purchaser upon completion.

5.  The guide price is an indication of the sellers minimum expectations.  This is not necessarily the figure that the property will sell for and may change at any time prior to the auction.  The property will be offered subject to a reserve (a figure below which the auctioneer cannot sell the property during the auction) which we will expect to be set within the guide range of no more than 10% above a single figure guide.

6. Flagship Housing Ltd have a restriction against use of the property as a House of Multiple Occupation (HMO).
The incoming purchaser may wish to explore a release of this restrictive covenant with Flagship Housing Ltd directly.

7. Any prospective buyer interested in adding additional units, subdividing the garden, or altering the property’s use will be required to obtain a release of covenant from Flagship Ltd, along with the necessary permissions.

June 2025

Council Tax Band

B

* Generally speaking Guide Prices are provided as an indication of each seller's minimum expectation, i.e. 'The Reserve'. They are not necessarily figures which a property will sell for and may change at any time prior to the auction. Virtually every property will be offered subject to a Reserve (a figure below which the Auctioneer cannot sell the property during the auction) which we expect will be set within the Guide Range or no more than 10% above a single figure Guide.

Loading the bidding panel...

Agreement Documents

Additional Documents

Related Documents

Make an Enquiry

Submit an enquiry and someone will be in contact shortly.

 
*  
*  
*
*
*

Share