Method of Sale
The property is offered for sale by Unconditional Timed Online Auction on 30th June 2021 and on the assumption the property reaches the reserve price, exchange of contracts will take place upon the fall of electronic gavel with completion occurring 19th July 2021 when the staff have vacated the premises. For details of how to bid please read our Online Auction Buying Guide.
The vendor's solicitor is preparing an Auction Legal Pack. This will be available to view online and interested parties should Register online to receive updates. If you are viewing a hard set of these particulars or via Rightmove or alike please visit the Online Property Auctions section of Clarke and Simpson's website to Watch/Register/Bid.
Sellers Solicitors
The sellers solicitors are Fairweather Law; 10 Riverside, Framlingham, Suffolk IP13 9AG; Tel: 01728 724737; Email; jpringle@fairweatherlaw.co.uk. We recommend that interested parties instruct their solicitor to make any additional enquiries prior to the auction.
Location
103 College Road is located within walking distance of the centre of the thriving market town of Framlingham. Framlingham is best known locally for its medieval castle and offers a good choice of schooling in the state and private sector. The property is within walking distance of a doctors surgery, Thomas Mills High School, Framlingham College and Sir Robert Hitcham Primary School. The town also benefits from an excellent variety of shops and businesses including cafés, restaurants, hairdressers, antique shops, a travel agency and delicatessen. It is also home to the Crown Hotel, Barclays Bank and a Co-operative supermarket. The popular coastal town of Aldeburgh and Snape Maltings Concert Hall home to the Aldeburgh Festival, are within easy reach some 11 miles to the east. The A12 lies just 7 miles to the south, and offers a direct link to Woodbridge, the county town of Ipswich and beyond to London, Cambridge and the Midlands (via the A14). There are regular services to London's Liverpool Street station, scheduled to take just over the hour. Direct and branch line rail services run into London's Liverpool Street Station via Ipswich from Campsea Ashe which is situated just beyond Wickham Market.
Description
103 College Road is a period property of predominantly brick construction under a slate tiled roof. In the last few decades the property has been divided into three flats for staff accommodation in association with Framlingham College. It is envisaged that the ground floor flat may achieve £575 per calendar month, the first floor flat, £600 per calendar month and the rear flat, £550 per calendar month, giving a total rent of £20,700 per annum. The guide price of £250,000 reflects a gross yield of 8.2%.
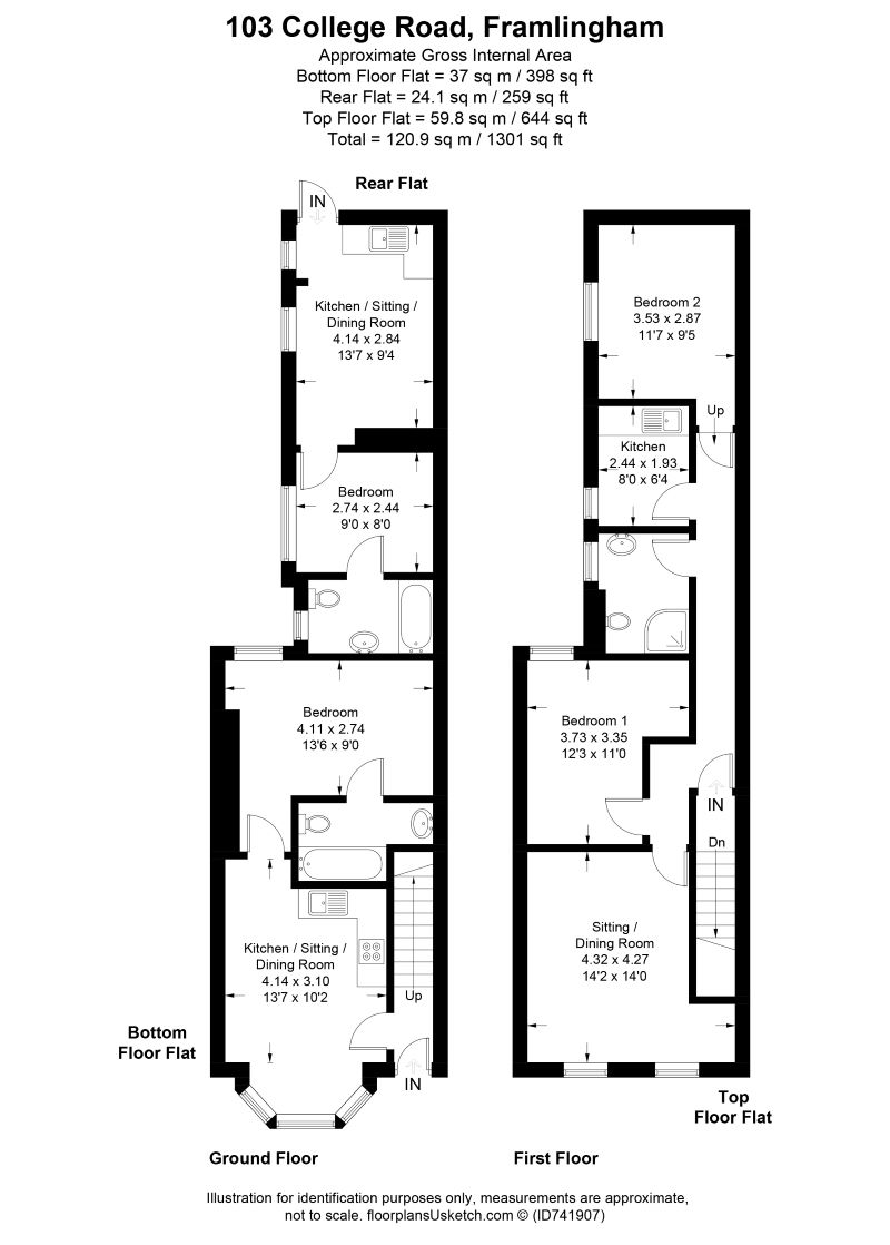
The Accommodation
A door to the front of 103 provides access to a communal lobby where stairs lead to the top floor flat and a door opens to the
Ground Floor Flat
Open plan Kitchen/Sitting/Dining Room
13'7 x 10'2 (4.14m x 3.10m) East facing UPVC bay window with views towards Framlingham College and Framlingham Castle. Kitchen area fitted with low level wall units with space and plumbing for an electric oven and fridge. Work surface with stainless steel sink with drainer and taps above. Radiator. A door leads to the
Bedroom
13'6 x 9' (4.11m x 2.74m) A double bedroom with west facing window to the rear of the property. Radiator. A door opens to the
Bathroom
Comprising bath with shower above, WC and hand wash basin. Radiator. Strip light. Extractor fan.
Top Floor Flat
Landing
With radiator and door off to
Sitting/Dining Room
14'2 x 14' (4.32m x 4.27m) East facing UPVC windows with views of Framlingham College, the castle and church. Radiator.
Bedroom One
12'3 x 11' (3.73m x 3.35m) A double bedroom with west facing window to the rear of the property. Radiator.
Shower Room
Comprising shower, WC and hand wash basin. Radiator. Face facing window with obscured glazing.
Kitchen
8' x 6'4 (2.44m x 1.93m) Low level wall units with work surface and stainless steel sink with drainer and mixer taps above. Space and plumbing for washing machine, electric oven and fridge. Wall mounted gas fired combi-boiler. Radiator.
Bedroom Two
11'7 x 9'5 (3.53m x 2.87m) A double bedroom with south facing window. Radiator.
Rear Flat
Accessed over a pedestrian right of way which leads to a rear courtyard garden measuring a minimum of 16'7 x 17'. A door provides access to the
Kitchen/Sitting/Dining Room
13'7 x 9'4 (4.14m x 2.84m) The kitchen area is fitted with low level wall units with a roll edge work surface, stainless steel sink with drainer and mixer taps above. Space for fridge. Wall mounted gas fired combi-boiler. South facing window. Radiator. A door opens to the
Bedroom
9' x 8' (2.74m x 2.44m) South facing window. Radiator. Door opens to the
Bathroom
Comprising bath with shower above and glazed screen. WC and hand wash basin. High level storage cupboard. Radiator. South facing window with obscured glazing.
Viewing
A video tour of the property is available online. Please follow current Covid-19 government guidelines.
Services
One supply for mains water, drainage, electricity and gas. It is understood there are currently no sub-meters fitted at the property for services and a buyer is likely to wish to undertake this work. Whilst a detailed investigation has not been undertaken, it appears that the combi-boiler in the rear flat also serves the front ground floor flat, with the first floor flat having its own boiler.
Council Tax
Ground Floor Flat and Top Floor Flat rated as one unit - Band B; £1,486.67 payable per annum 2021/2022. Rear Flat rated - Band A; £1,274.29 payable per annum 2021/2022
Local Authority
East Suffolk Council; East Suffolk House, Station Road, Melton, Woodbridge, Suffolk IP12 1RT; Tel: 01394 383789
EPC =
Top floor flat - D, Bottom floor flat - C, Rear flat - D
NOTES
1. These particulars are produced in good faith, are set out as a general guide only and do not constitute any part of a contract. No responsibility can be accepted for any expenses incurred by intending purchasers or lessees in inspecting properties which have been sold, let or withdrawn. Interested parties should rely on their own/their surveyors investigations as to the construction type of the property and its condition. No warranty can be given for any of the services or equipment at the property and no tests have been carried out to ensure that heating, electrical or plumbing systems and equipment are fully operational. Any distances, room aspects and measurements which are given are approximate only. Any plans are indicative only and may not be the same as the transfer plan/s. No guarantee can be given that any planning permissions or listed building contents or building regulations have been applied for or approved. The agents have not been made aware of any covenants or restrictions that may impact the property, unless stated otherwise
2. Under Money Laundering, Terrorist Financing and Transfer of Funds (Information on the Payer) Regulations 2017 we, as Estate Agents, are required to obtain identification from buyers in the form of the photo page of your passport or a photo driving licence. The document must be in date. In addition, we need proof of address in the form of a utility bill with the name and address of the buyer. This must not be more than three months old. We are also under obligation to check where the purchase funds are coming from. When you register to bid you will be prompted to provide the appropriate money laundering documentation.
3. In the unlikely situation of our client considering an offer prior to auction, a premium price would have to be put forward and the purchaser would be required to sign the contract and put down a 10% deposit and pay the Buyers Administration Charge, well in advance of the auction date. An offer will not be considered unless a potential buyer has read the legal pack and is in a position to immediately sign the contract. The seller is under no obligation to accept such an offer. It should ne noted that Clarke and Simpson cannot keep all interested parties updated and at times will be instructed to accept an offer and exchange contracts without going back to any other parties first.
4. Additional fees: Buyers Administration Charge - £900 including VAT (see Buying Guide). Disbursements - please see the Legal Pack for any disbursements listed that may become payable by the purchaser upon completion.
5. Generally speaking a guide price is an indication of the sellers minimum expectations. They are not necessarily the figure that the property will sell for and may change at any time prior to the auction. Virtually every property will be offered subject to a reserve (a figure below which the auctioneer cannot sell the property during the auction) which we will expect will be set within the guide range of no more than 10% above a single figure guide.
6.The property will have a pedestrian right of way over the land shaded green on the indicative site plan included within the particulars.
* Generally speaking Guide Prices are provided as an indication of each seller's minimum expectation, i.e. 'The Reserve'. They are not necessarily figures which a property will sell for and may change at any time prior to the auction. Virtually every property will be offered subject to a Reserve (a figure below which the Auctioneer cannot sell the property during the auction) which we expect will be set within the Guide Range or no more than 10% above a single figure Guide.
Submit an enquiry and someone will be in contact shortly.
By setting a proxy bid, the system will automatically bid on your behalf to maintain your position as the highest bidder, up to your proxy bid amount. If you are outbid, you will be notified via email so you can opt to increase your bid if you so choose.
If two of more users place identical bids, the bid that was placed first takes precedence, and this includes proxy bids.
Another bidder placed an automatic proxy bid greater or equal to the bid you have just placed. You will need to bid again to stand a chance of winning.